Котел КВа 0.3 МВт в Павлодаре

Газовый котел КВа 0.3 МВт
Котел КВа 0.3 МВт газовый
Чертеж газового котла КВа 0.3
Газовый котел КВа 0.3 чертеж
Газовый водогрейный котел 0.3 МВт
Водогрейный газовый котел 0.3 МВт
Газовый котел 0.3 МВт промышленный
Промышленный газовый котел 0.3 МВт
Газовый котел 0.3 МВт отопительный
Отопительный газовый котел 0.3 МВт
Газовые котлы 0.3 МВт
Котлы газовые 0.3 МВт
Газовый котел 0.3 МВт производство
Производство газовых котлов 0.3 МВт
Газовый котел КВа 0.3 МВт
Чертеж газового котла КВа 0.3
Газовый водогрейный котел 0.3 МВт
Газовый котел 0.3 МВт промышленный
Газовый котел 0.3 МВт отопительный
Газовые котлы 0.3 МВт
Газовый котел 0.3 МВт производство
Цена
2 461 320 ₸
От 2 461 320 ₸ с доставкой до г.
  • Автоматическое регулирование температурных режимов
  • Надежная гладкотрубная конструкция исключает деформации и разрывы швов
  • Встроенная система взрывобезопасности
  • Низкие требования к качеству питательной воды
  • Модель работает с отечественными и импортными горелками

Технические характеристики котла КВа 0.3 МВт

МаркаКотел КВа 0.3 МВт газовый
ВидВодогрейный
Тип отопительного котлаГазовый
БрендHEATEXPERT
ТипКотел КВа
Вид топкиГазовая горелка
Совместимое горелочное устройствоИмпортные горелки Gib Unigas, Oilon, Ecoflam и тд.
Максимальная тепловая мощность0.3 МВт
Максимальная тепловая мощность300 кВт
Максимальная тепловая мощность0.26 Гкал
Диапазон регулирования мощности40-100 %
ТопливоГаз
Низшая теплота сгорания проектного топлива9400 кКал/кг
КПД котла на ГАЗЕ, не менее91.3 %
Расход ГАЗА среднечасовой за отопительный сезон18 м³/ч
Расход ГАЗА при максимальной нагрузке котла32 м³/ч
Расход условного топлива43 кг/ч
Минимальная температура воды на входе в котел55 °С
Максимальная температура воды на выходе из котла115 °С
Давление воды, не более0.3-0.6 (3-6) МПа (кгс/см²)
Номинальный расход теплоносителя11 м³/ч
Расход теплоносителя через котел min-max8-14 м³/ч
Гидравлическое сопротивление при номинальном расходене более 0.07 (0.7) МПа (кгс/см²)
Аэродинамическое сопротивление430 (43) Па (мм. вод. ст.)
Давление в топочной камере480 (48) Па (мм. вод. ст.)
Объем уходящих газов700 м³/ч
Температура уходящих газов164 °С
ТягаПринудительная
Водяной объем котла250 л
Объем топочной камеры0.51 м³
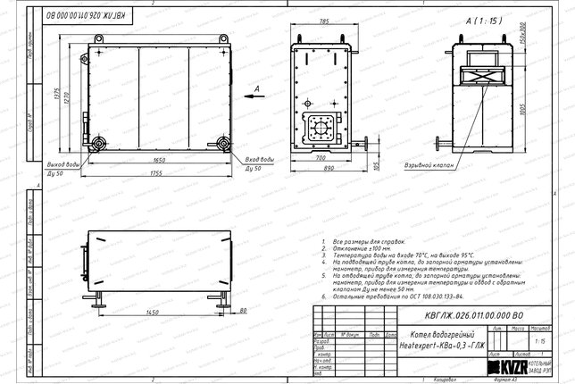
Размер топочной камеры, длина*ширина*высота1450х500х700 мм
Присоединительные размеры по водяному тракту50 Ду
Присоединительные размеры газохода уходящих газов, ширина*высота / сечение300х150 / 0.045 мм/м²
Габаритные размеры котла, длина*ширина*высота1880х890х1370 мм
Масса680 кг
Конструкция котлаВодотрубная
Количество контуровОдноконтурный
РазмещениеНапольный
Тип камеры сгоранияЗакрытый
УправлениеЭлектронное
Принцип работы газового котлаКонвекционный
ЭнергонезависимыйНет
Тип питанияТрехфазное
Встроенный циркуляционный насосНет
Встроенный расширительный бакНет
ЭнергоэффективностьВысокая
Размеры корпуса котла, длина*ширина*высота1650х700х1270 мм
Отапливаемая площадьот 2300 до 3300 м²
Отапливаемый объемот 6900 до 10000 м³

Котел водогрейный КВа 0.3 МВт в Павлодаре

Водогрейный котел КВа 0.3 предназначен для установки в промышленных котельных с целью отопления и горячего водоснабжения производственных помещений и жилых зданий. Может работать с широким рядом горелочных устройств как иностранного, так и отечественного производства. Максимальная температура нагрева воды 115 °С, давление - от 0,3 до 0,6 МПа. Используемое топливо – природный и сжиженный газ, легкое дизельное топливо, мазут, отработанное масло.

Котел КВа 0.3 МВт устройство

Промышленный отопительный котел КВа 0,3 МВт - напольный, водотрубный, гладкотрубный, выполнен в горизонтальном расположении. Газоплотная топка расположена в передней части теплоагрегата. В верхней части котельного блока находится двухходовой конвективный пакет. Фронтовая плита может быть выполнена под конкретный тип горелки. Снаружи котлоагрегат обшивается стальными листами с теплоизоляцией.

Конструкция трубной системы обеспечивает компактность котла. Гладкотрубная поверхность нагрева исключает деформации и разрывы швов. Стены газоплотной топки представляют собой охлаждаемые трубы с вваренной между ними стальной полосой. В задней зоне камеры горения крепится взрывной клапан. При повышении давления в топочной камере, клапан открывается и спускает давление. Конвективные пакеты размещены в шахматном порядке друг напротив друга. Благодаря этому поверхность нагрева имеет большую полезную площадь и максимальный коэффициент передачи тепла. Дымовые газы успевают охладиться к выходу из котлоагрегата до температуры 200-180 °С, что снижает теплопотери.

Благодаря гладкотрубной системе, небольшому объему циркулирующей воды, наличию взрывного клапана – водяной котел КВа 0.3 МВт безопасен, нет риска взрыва в аварийной ситуации.

За счет изоляции трубной системы котла плитами ПТЭ и обшивке стальными листами температура наружных стенок не превышает 30 °С.

Гидравлическая схема котла

Стальной водонагревательный котел КВа 0 3 МВт не требователен к качеству питательной воды.

Высокая скорость движения воды турбулизирует поток и не допускает отложение солей и образование накипи на стенках труб. Многочисленные перегородки в коллекторах распределяют поток теплоносителя. В результате чего в трубной системе исключаются застойные зоны, тепловые напряжения и локальный перегрев.

Принцип работы котла КВа 0.3 МВт

Горелка обеспечивает смешивание газа с воздухом, поступление газовоздушной смеси в топку и ее горение. При помощи горелки поддерживается необходимая температура в котлоагрегате, но не более 115 °С. При достижении предельной температуры воды горелка автоматически отключается и включается.

Тепло образующееся от горения топлива поступает в конвективную часть, нагревая теплоноситель.

Конструкция топочной камеры и ее большой объем позволяют подключать горелки большинства ведущих российских и иностранных производителей, в том числе EMMA, ILKA, CIB UNIGAS, BALTUR, ECOSTAR, FBR S.R.L. и другие. Наш завод также производит модели котлов для работы на российских горелках БИГ, ГМГ, РМГ, ГГ, РГМГ.

Комплект поставки

Цена на напольные котлы КВа 0,3 МВт для отопления включает базовую комплектацию. В состав базовой комплектации входит: затворы, предохранительные клапаны, вентили, манометры, термометры, трехходовые краны.

Дополнительная комплектация

  • автоматика – обеспечивает управление и безопасность котла;
  • горелка – обеспечивает смешивание газа и воздуха, подачу газовоздушной смеси к фронту горения, регулирование процесса горения;
  • циркуляционный насос - обеспечивает циркуляцию воды в котлоагрегате;
  • подпиточный насос – позволяет пополнять объем теплоносителя в контуре.

Купить котел КВа 0.3 МВт

Для того, что бы купить водогрейный котел КВа 0.3 МВт в Павлодаре вы можете сделать заявку по телефону +7-7172-69-59-73, либо оформить заявку онлайн. Менеджеры дадут консультацию по подбору вспомогательного оборудования для выбранных вами моделей и рассчитают стоимость доставки. Транспортирование котлоагрегата и вспомогательного оборудования до объекта осуществляется автомобильным транспортом.

Комплект поставки котла КВа 0.3 МВт

Затвор ДУ 50
Затвор Ду 50
2 штуки
Клапан обратный
Клапан обратный
1 штука
Манометр МП 160
Манометр МП 160
2 штуки
Кран трехходовой ДУ 15
Кран Ду 15
2 штуки
Термометр ТТЖО
Термометр ТТЖО
2 штуки
Оправа термометра ОПТ
Оправа ОПТ
2 штуки
Шаровый кран
Кран шаровый
4 штуки

Вспомогательное оборудование для работы котла КВа 0.3 МВт

Горелка газовая Emma
Цена 1 761 720 тг.
Насос К консольный
К 50-32-125
Цена 283 656 тг.
Насос К консольный
К 50-32-125а
Цена 279 204 тг.
Насос TD
Насос TD32-33G2 (3 кВт)
Цена 788 640 тг.
Насос CHL
Насос CHL2-40 (0.55 кВт)
Цена 368 880 тг.

Аналоги котла КВа 0.3 МВт

Дизельный котел КВа 0.3 МВт
Котел 0.3 МВт дизельный
Вид топкиДизельная горелка
Максимальная тепловая мощность, МВт0.3
ТопливоДизель, Жидкое
Отапливаемая площадь, м²от 2300 до 3300
Цена 2 461 320 тг.
Котел 0.3 МВт на мазуте
Котел 0.3 МВт мазутный
Вид топкиМазутная горелка
Максимальная тепловая мощность, МВт0.3
ТопливоМазут, Жидкое
Отапливаемая площадь, м²от 2300 до 3300
Цена 2 512 200 тг.
КВр-0.3 К котел
Котел КВр 0.3 МВт
Вид топкиРучная, Колосники
Максимальная тепловая мощность, МВт0.3
ТопливоТвердое, Уголь
Отапливаемая площадь, м²от 2300 до 3300
Цена 2 906 520 тг.
Газовый котел КВа 0.25 МВт
Котел КВа 0.25 МВт
Вид топкиГазовая горелка
Максимальная тепловая мощность, МВт0.25
ТопливоГаз
Отапливаемая площадь, м²от 1500 до 2600
Цена 2 416 800 тг.
Газовый котел КВа 0.4 МВт
Котел КВа 0.4 МВт
Вид топкиГазовая горелка
Максимальная тепловая мощность, МВт0.4
ТопливоГаз
Отапливаемая площадь, м²от 3000 до 4300
Цена 2 734 800 тг.

Собственное производство

Котельный завод производит
  • Паровые котлы от 300 кг до 2.5 тонны пара в час
  • Промышленные водогрейные котлы от 150 КВт до 4 МВт на всех видах топлива
  • Механические топки ТШПМ, шурующая планка и ТЛПХ, ленточное полотно прямого хода
  • Циклоны для очистки воздуха и дымовых газов для производств и промышленных отраслей
  • Транспортеры и системы топливоподачи и шлакоудаления
Подробнее о производстве
Собственное производство
Смотреть видео
с производства